Just days after a Bishan flat grabbed headlines with its record-breaking price, another jaw-dropping deal has emerged — and this one goes even further. A 5-room unit has just sold for S$1.632 million, setting a new price record for Bishan and ranking as the second-highest HDB resale transaction in Singapore to date.
Table of contents
- The record-breaking unit within Natura Loft
- Most expensive HDB flat in Bishan
- Second-highest transacted HDB flat in Singapore
The record-breaking unit within Natura Loft

The unit is a 5-room DBSS flat located at Block 275A Bishan Street 24. It spans 1,292 sqft and sits between the 34th and 36th floors, offering unblocked high-floor views that remain rare in this central estate. The flat is part of Natura Loft, a Design, Build and Sell Scheme (DBSS) development with 480 units, made up of a mix of 4-room and 5-room flats. With its lease starting in 2011, the flat still enjoys about 85 years of remaining tenure, which strengthens its long-term value appeal.
This new record surpasses the project’s previous benchmark set in July 2024, where another 5-room unit in the same block sold for S$1.568 million. That means the new transaction is about S$64,000 higher over a year apart.
Notably, Bishan has seen 90 5-room flat transactions so far in 2025. Among them, four crossed the S$1.5 million mark, and all four belong to Natura Loft. This alone reinforces the project’s standout position in Bishan’s resale market.
As a DBSS development, Natura Loft was designed and built by private developers. While it does not come with condominium-style facilities like pools or clubhouses, it still delivers condo-like finishes, such as higher ceilings, better fixtures, and stronger design appeal. Being a 40-storey development, its high-floor units, like the current S$1.632M sale, also offer panoramic, unblocked views of the surrounding area.
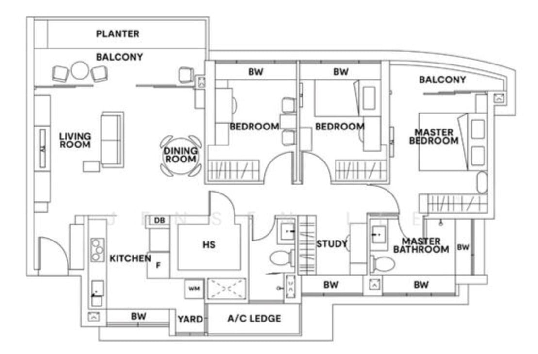
5-room DBSS layout

The layout of this particular 5-room unit comes with a slightly curved section in the main bedroom. However, this mainly affects the balcony zone rather than the internal bedroom area, so it is unlikely to be a major deal-breaker for most buyers.
Like many DBSS flats from that era, the unit includes bay windows and planters. While some buyers see these as inefficient due to “wasted space”, others appreciate the distinctive look and added depth they bring to the interiors.
Compared to modern HDB layouts, which often favour a dumbbell configuration, this is a more traditional design. The living and dining areas are positioned on one side, while the bedrooms occupy the other. This results in slightly more corridor space, but also offers better privacy for the sleeping areas.
Another uncommon feature is the dedicated study room, which is not typically found in standard HDB 5-room flats today. For families with children or those working from home, this extra space adds practical lifestyle value.
Curious if your home could be a million-dollar resale? Check its value in under a minute with
99.co’s Property Value Tool.
What’s around Natura Loft?
Natura Loft enjoys a strong central position in Bishan. It sits between Bishan MRT Interchange (North-South Line and Circle Line) and Marymount MRT (Circle Line), giving residents excellent connectivity to both the city and the rest of the island.
Daily necessities are well within reach. There are several neighbourhood grocery stores nearby, along with Bishan North Shopping Mall, which is only about a 3-minute walk away. For more comprehensive retail and dining options, Junction 8 sits just a 5-minute drive away near Bishan MRT.
For families, the location is particularly attractive. Catholic High School and Whitley Secondary School are located within roughly 100 metres. Other established schools in the vicinity include Marymount Convent School, Ai Tong School, Ang Mo Kio Primary School, Raffles Institution, and Raffles Girls’ School (Secondary), among others.
Green spaces are also close by. Bishan North Neighbourhood Park is about a 5-minute walk, while Bishan Active Park is reachable in around 6 minutes on foot. For larger nature escapes, MacRitchie Reservoir Park is a short 9-minute drive, and Bishan-Ang Mo Kio Park is about 6 minutes away by car.
Most expensive HDB flat in Bishan
With this S$1.632 million transaction, Bishan has once again rewritten its price ceiling. The previous town record was set earlier this week when a 38-year-old executive maisonette in Bishan Green was sold for S$1.6 million. That unit also broke the national record for executive flats.
| Date | Address | Size (sqft) | Price (S$) | Type | TOP |
| 11/2025 | 275A Bishan Street 24 | 1,292 | 1.632 M | 5RM | 2011 |
| 11/2025 | 135 Bishan Street 12 | 1,755 | 1.6 M | EXE | 1987 |
| 07/2025 | 194 Bishan Street 13 | 1,755 | 1.588 M | EXE | 1987 |
| 07/2024 | 275A Bishan Street 24 | 1,292 | 1.568 M | 5RM | 2011 |
| 09/2025 | 275A Bishan Street 24 | 1,292 | 1.55 M | 5RM | 2011 |
Interestingly, Bishan’s top five priciest flats largely come from just two clusters: the executive flats along Bishan Street 12 and 13, and the 5-room DBSS units at Natura Loft.
Following this latest sale, Bishan has now recorded 158 transactions of million-dollar 5-room flats. Million-dollar flats are increasingly common in this area, with active listings on 99.co showing a number of 5-room flats within Natura Loft with asking prices ranging from S$1.2 million to over S$1.5 million.
Looking to sell your current home to upgrade?
Book a FREE consultation with
99 advisors
to maximise your sale.
Second-highest transacted HDB flat in Singapore
Beyond Bishan, this S$1.632 million resale also ranks as the second-most expensive deal recorded in Singapore. The national top spot still belongs to a 5-room flat at 92 Dawson Road, Queenstown, which sold for S$1,658,888 in June 2025. That Dawson unit spans 1,313 sqft and has a lease that started in 2016, giving it more than 89 years of remaining tenure, compared to Natura Loft’s 85 years.
Here’s how the top five highest HDB transactions stack up:
| Date | Address | Size (sqft) | Price (S$) | Type | TOP |
| 06/2025 | 92 Dawson Road | 1,313 | 1.659 M | 5RM | 2016 |
| 11/2025 | 275A Bishan Street 24 | 1,292 | 1.632 M | 5RM | 2011 |
| 08/2025 | 1G Cantonment Road | 1,130 | 1.6 M | 5RM | 2011 |
| 01/2025 | 138A Lorong 1A Toa Payoh | 1,259 | 1.6 M | 5RM | 2012 |
| 11/2025 | 135 Bishan Street 12 | 1,755 | 1.6 M | EXE | 1987 |
With two entries in the national top five, Bishan continues to cement its status as one of Singapore’s most desirable HDB towns. Its strong schooling ecosystem, central location, and mature amenity network give it an edge that newer towns still struggle to replicate.
Looking ahead, Bishan is also slated for long-term transformation under the URA Master Plan 2025. Over the next 10 to 15 years, its town centre could evolve into a stronger business and lifestyle hub, injecting new activity into the area. These upcoming improvements could keep buyer demand high and push prices upward.
While future supply in surrounding towns like Bidadari, Toa Payoh, and Caldecott may help moderate overall price growth in Bishan, premium developments such as Natura Loft are likely to retain a distinct buyer pool — especially for high-floor units with unblocked views and other strong attributes.
Interested in more All-Time High (ATH) covers? Head on over here!
The post 5-room DBSS in Bishan sold for record S$1.632M, second-highest HDB deal in Singapore appeared first on .