With sales booking commencing on 31 January, buyers are beginning to evaluate this new freehold CBD development more closely. The key insights offered in this article provide a structured lens for assessing how Newport Residences is positioned and who it is likely to appeal to.
Table of contents
- Project overview – Newport Residences
- Unit mix breakdown: Who is this project really for?
- Premium specification across all unit types
- Newport Residences’ floorplan review
- ⚖️ Main strengths and considerations
Project overview – Newport Residences
| Project Name | Newport Residences |
| Developer | City Developments (CDL) |
| Architect | Nikken Sekkei and ADDP Architects |
| Location | Anson Road (District 2) |
| Tenure | Freehold |
| GFA | Approx. 655,000 sqft |
| No. of Units | 246 |
| Unit Types | 1 to 4 bedrooms |
| Starting Price | From S$1.298 million |
| Expected TOP | 2030 |
Positioned at the edge of the CBD and next to the emerging Greater Southern Waterfront, Newport Residences sits within one of Singapore’s key transformation zones. It occupies the upper portion of Newport Plaza, spanning from levels 23 to 45. This elevated starting point gives the project a visual advantage over many urban developments, where lower-floor units often face more immediate obstructions.
According to a press release from CDL, the starting price of units at Newport Residences will be:
- S$1,298 million (S$3,012 psf) for a 431 sqft, 1-bedroom
- S$1.968 million (S$3,046 psf) for a 646 sqft, 2-bedroom
- S$3.238 million (S$3,304 psf) for a 980 sqft, 3-bedroom
- S$8.28 million (S$4,006 psf) for a 2,067 sqft 4-bedroom premium
Get the latest pricing and unit availability!
The homes are stacked above a layered mix of uses, with F&B outlets at ground level, Grade A office spaces from levels 2 to 9, and branded serviced apartments occupying levels 10 to 22. The vertical integration creates a self-contained mixed-use environment, similar in concept to large-scale developments commonly seen in metropolitan cities across Asia.

Make sure you know everything Newport Residences has to offer — Read our full new launch review
here
Unit mix breakdown: Who is this project really for?
A closer look at the unit mix shows that Newport Residences is clearly positioned towards investors, singles, and buyers with smaller household sizes. 1- and 2-bedroom units dominate the development, accounting for close to 80% of the total 246 units, while larger family-sized formats form a much smaller share.
| Unit Type | Size (sqft) | No. of Units | |
| 1 Bedroom / + Study | 431 – 581 | 108 | 44% |
| 2 Bedroom | 646 – 753 | 24 | 10% |
| 2 Bedroom Premium / + Study | 689 – 926 | 63 | 26% |
| 3 Bedroom / Premium / + Study | 980 – 1,227 | 32 | 13% |
| 4 Bedroom Premium | 2,067 | 18 | 7% |
| Super Penthouse + Private Lift | 12,960 | 1 | – |
| TOTAL | 246 | ||
Within this mix, there is a notable skew towards 1-bedroom units and 2-bedroom units with a single bathroom. In recent years, such layouts have generally seen softer demand, largely because they offer less flexibility for owner-occupiers and future resale compared to two-bathroom configurations. Many buyers today lean towards larger and more flexible layouts that can comfortably accommodate either an affluent individual or a small family.
Newport Residences, however, is not an anomaly within the CBD. Its unit mix closely mirrors that of nearby developments such as One Bernam and Eon Shenton. Developers in this area remain well aware that 1- and 2-bedroom units with one bathroom continue to attract buying interest, particularly when supported by freehold tenure and a prime central location.
There is also a distinct buyer segment made up of singles and couples who prioritise a CBD address over larger living spaces in the RCR or OCR. For these buyers, a smaller unit in a prestigious location can be more appealing than a bigger home further out.
Premium specification across all unit types
Beyond the unit mix, Newport Residences delivers a consistent level of premium specifications across all unit types. Every unit comes with a 3.05-metre ceiling height, marble flooring in the common areas, and engineered timber flooring in the bedrooms. These finishes are applied uniformly, including in the 1-bedders.

Luxury fittings and appliances from brands such as V-Zug, Liebherr, Dornbracht, and Haiku are also standard throughout the development. This reinforces the developer’s intent to deliver a cohesive and upmarket living experience across the entire project, rather than reserving premium features only for larger units.
One notable limitation is the absence of private lift access for most homes. This feature is reserved exclusively for the Super Penthouse. As a result, even buyers purchasing 4-bedroom Premium units, which are priced well above the S$8 million mark, will still rely on common lifts.
Newport Residences’ floorplan review
1-bedroom layouts
The 1-bedroom and 1-bedroom plus study units make up the largest segment of the development at about 44% of the total supply. These layouts are generally regular in shape and easy to furnish. The main exception is Type A5, where the Master Bedroom features a slight curve. However, the curvature appears mild and is unlikely to significantly reduce usable space.

All 1-bedroom units at Newport Residences come with open-concept kitchens and balconies. More than half of these units also enjoy sea views, depending on stack orientation. Additionally, buyers should note that not all layouts for 1-bedders are available across the full height of the residential tower.
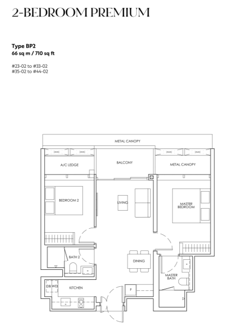
2-bedroom layouts
The 2-bedroom category offers a wider range of layouts, including 1- and 2-bathroom options as well as configurations with a study. At the sales gallery, showflat units include the Type BP2 layout, which is also the only dumbbell configuration among the 2-bedroom units at Newport Residences.

While dumbbell layouts are often favoured for their space efficiency, corridor-style layouts may still appeal to buyers who prefer clearer separation between living and sleeping areas. One thing to note is that none of the 2-bedroom units at Newport Residences features kitchens with windows, while only the 2-bedroom plus study layout has the Master Bathroom with a window for natural ventilation.
3-bedroom layouts
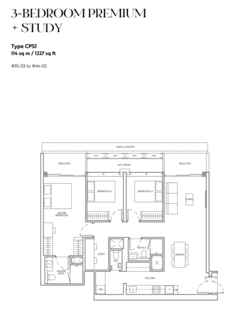
For 3-bedroom buyers, three layouts are available for Newport Residences: a standard configuration, one with a store room, and one with a study. The study variant, Type CPS1, is the largest at 1,227 sqft and also arguably the most efficient.

It features a largely squarish layout and includes two balconies, one connected to the living room and another to the Master Bedroom. Meanwhile, the remaining two layouts introduce curved design elements. They also feature longer entrance corridors. While this entryway enhances privacy, it may result in less efficient space utilisation.
4-bedroom layouts

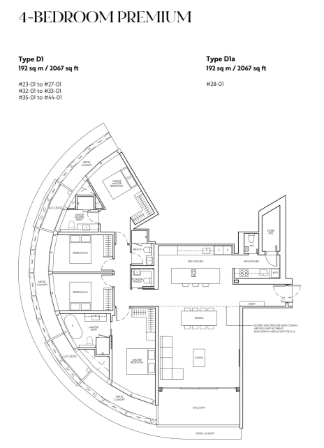
The sole 4-bedroom Premium layout occupies a corner stack and is one of the layouts featured at the sales gallery. It enjoys sweeping sea views and includes windows in two bathrooms. Although several areas of the layout are curved, the generous living space provides sufficient flexibility for creative interior design solutions, potentially turning these curves into a design feature rather than a drawback.
⚖️ Main strengths and considerations
Positioned at the edge of the Greater Southern Waterfront
Newport Residences stands to benefit from its proximity to the Greater Southern Waterfront, one of Singapore’s most ambitious long-term redevelopment plans. When fully realised, this waterfront precinct will span an area roughly six times the size of Marina Bay. Early phases of transformation are already underway, including the launch of BTO flats on the former Keppel Club Golf Course, with more residential and lifestyle components expected to follow.
While the Greater Southern Waterfront will take years, if not decades, to fully materialise, Newport Residences sits within the immediate fringe of this growth corridor. This positions the project as an early beneficiary of future uplift rather than one entering the market after the transformation has largely played out.
Benefiting from the ongoing evolution of CBD living
The CBD Incentive Scheme reflects the government’s broader push to reshape the Central Business District into a more vibrant, mixed-use environment that supports living, working, and leisure around the clock. This shift is already visible through developments that combine residential, commercial, and lifestyle uses, with Newport Residences and Union Square Residences being clear examples.
Although this transformation will occur gradually, it marks a structural change in how the CBD is expected to function over time. As more mixed-use developments are introduced, the perception of CBD living may shift from being purely work-centric to one that supports a fuller urban lifestyle.
Freehold tenure aligned with long-term transformation
Freehold tenure becomes particularly relevant in the context of long-term urban regeneration. As the transformation of both the CBD and the Greater Southern Waterfront unfolds over multiple decades, concerns around lease decay are effectively removed. This allows Newport Residences to ride through different market cycles without the same time-bound constraints faced by leasehold projects.
For buyers who place confidence in Singapore’s track record of executing large-scale masterplans, a freehold luxury development situated between two major transformation zones may present stronger long-term capital preservation potential.
Fairly priced for a development of its class
Indicative launch prices at Newport Residences start from around S$3,012 psf, which is broadly in line with expectations for a new freehold luxury development in the CBD. Prospective buyers doing price comparisons should also consider that residential units at Newport begin from the 23rd floor, offering open views that typically command a premium in dense urban environments.
The level of finishes further supports this pricing. Marble flooring in common areas, engineered timber flooring in bedrooms, and fittings from luxury brands are standard across all unit types. These specifications are more commonly associated with high-end developments and are seldom found in mass-market projects due to cost considerations.
Interested in this new launch? Calculate your payments with 99.co’s
Progressive Payments Calculator
Muted demand for recent CBD residential launches
Despite these strengths, recent residential launches in the CBD have not seen strong take-up from local buyers. Projects such as One Bernam required price adjustments to clear remaining inventory, while the lower take-up at recent upscale new launches has reinforced the perception that CBD homes cater to a narrower buyer pool.
This sentiment has also been shaped by resale performance. Some owners in established CBD developments, such as Marina One Residences, continue to face capital losses, which may weigh on buyer confidence in the segment.
However, these outcomes are often tied to many factors. For newer freehold projects like Newport Residences, which are launching at a different point in the market cycle and offer distinct attributes, this more subdued environment may actually support a healthier and more sustainable price appreciation.
Curved layouts may not suit all buyers
Another consideration lies in the architectural form of the development. The curved tower design introduces non-linear walls in selected unit layouts, which may not appeal to buyers who prioritise strictly regular spaces. This is most evident in certain bathrooms and secondary areas.
That said, the impact of curvature is generally managed. Living areas and bedrooms are largely kept in regular shape, allowing for practical furnishing. For buyers open to creative interior solutions, these design elements may be manageable or even more appealing — they remain a matter of personal preference.
Wrapping up
Newport Residences presents a considered proposition for buyers who take a longer-term view of CBD living, underpinned by freehold tenure, a mixed-use setting, and its position next to two major urban transformation zones. While the project leans towards compact formats rather than family-sized homes, it offers a clear lifestyle and investment rationale for the right segment.
Stay updated with the latest news and insights on Singapore’s new launch market here.
The post 5 key insights for Newport Residences prospective buyers appeared first on .